Global CRO Company

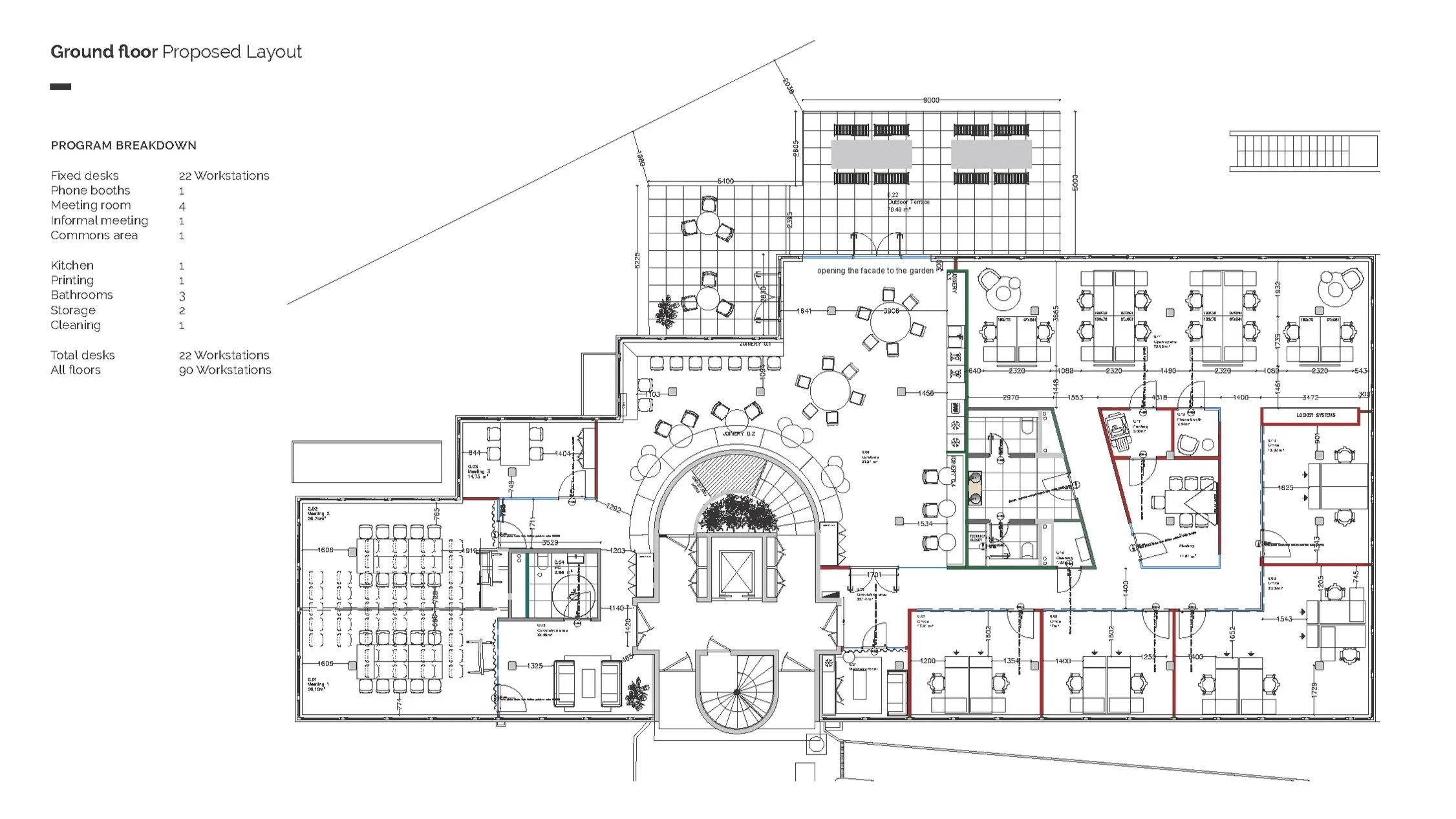
This global CRO company is known for it’s positive culture and sense of family internally. We brought the companies global design language to life whilst also keeping the project sensitive to the context of Paris. The work settings and space plan focused on privacy allowing for highly confidential calls. The ground floor cafeteria was designed as a communal hub to spark socialization and community amongst the team as a break from their desk.

Client
Global CRO Company, Paris

Year
2022

Company
Allure

Materiality & Space Plans

Project finishes and materials board.

Site video

In collaboration with the delivery team we executed and full strip out and full interior fitout from new layouts, partitioning, exterior windows, glazing, HVAC, electrical and custom joinery pieces.

Previous
Previous

Endeavour Group, Melbourne

Next
Next

TikTok, Berlin